Open Floor Plan Design Ideas 2025

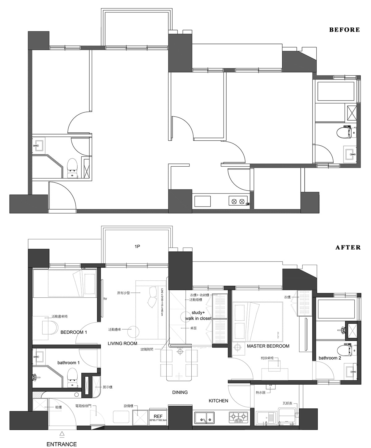
Design open concept spaces that flow seamlessly. Define zones without walls using furniture area rugs and strategic lighting placement.

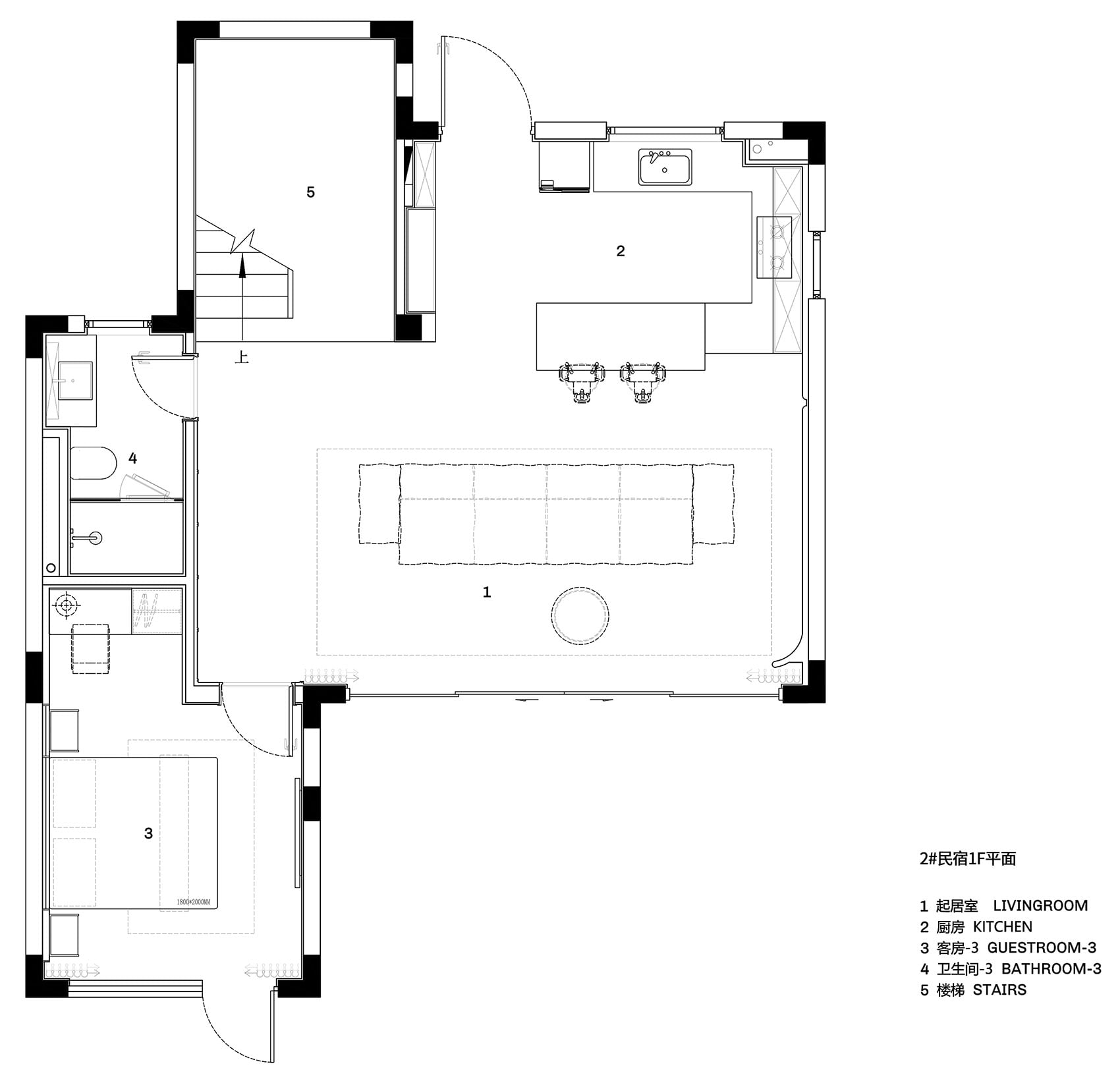
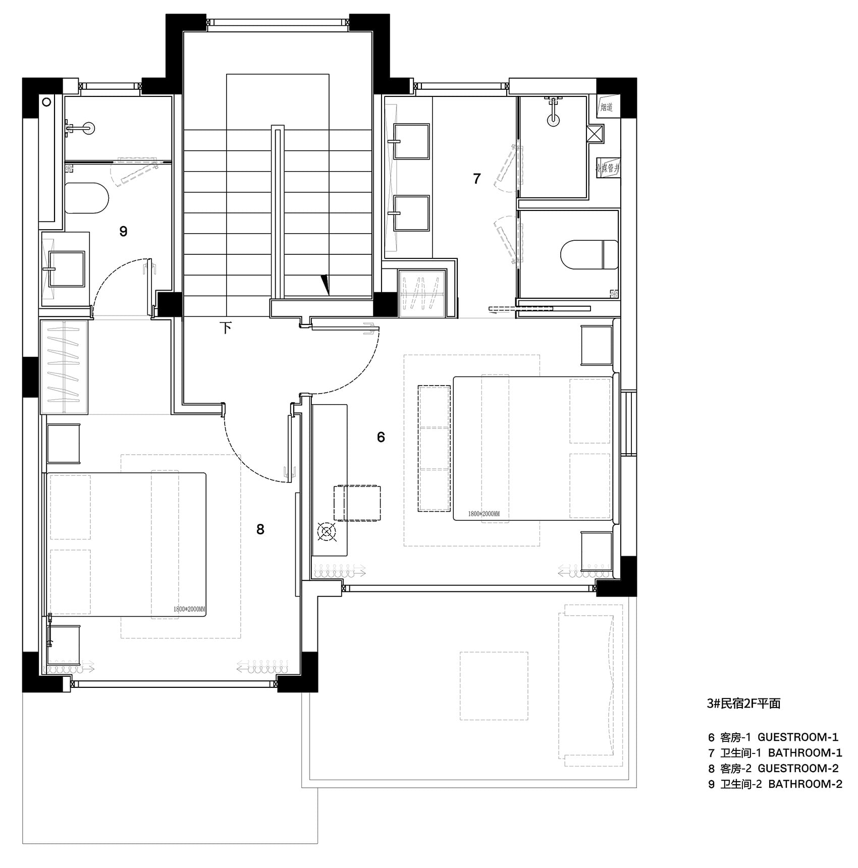
Design inspiration
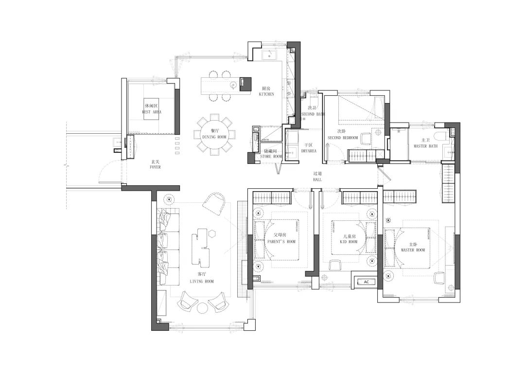
Design inspiration
Design inspiration
Design inspiration
Design inspiration
Design inspiration
Design inspiration
Design inspiration
Design inspiration
Design inspiration
Design inspiration
Design inspiration
Design inspiration
Design inspiration
Design inspiration
Design inspiration
Design inspiration
Design inspiration
Design inspiration
Design inspiration
Design inspiration
Design inspiration
Design inspiration
Design inspiration
Design inspiration
Design inspiration
Open Floor Plan Design Ideas 2025 | Feel Design AI | Feel Design