FeelDesign
探索
文章
價格
資源
ZH
登入
Zhiyi Design Research Office | Best Hospitality Designer in Bangkok, Thailand | Feel Design
Back
Zhiyi Design Research Office
Hospitality Designer
Bangkok, Thailand
Get in touch
Services
Interior Design
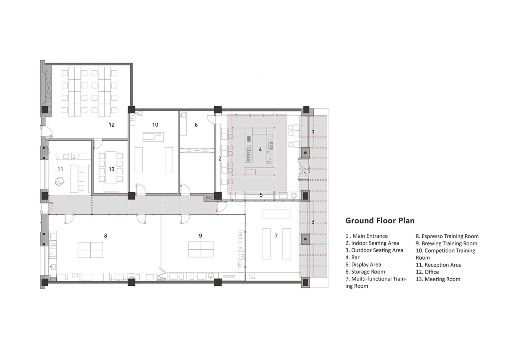
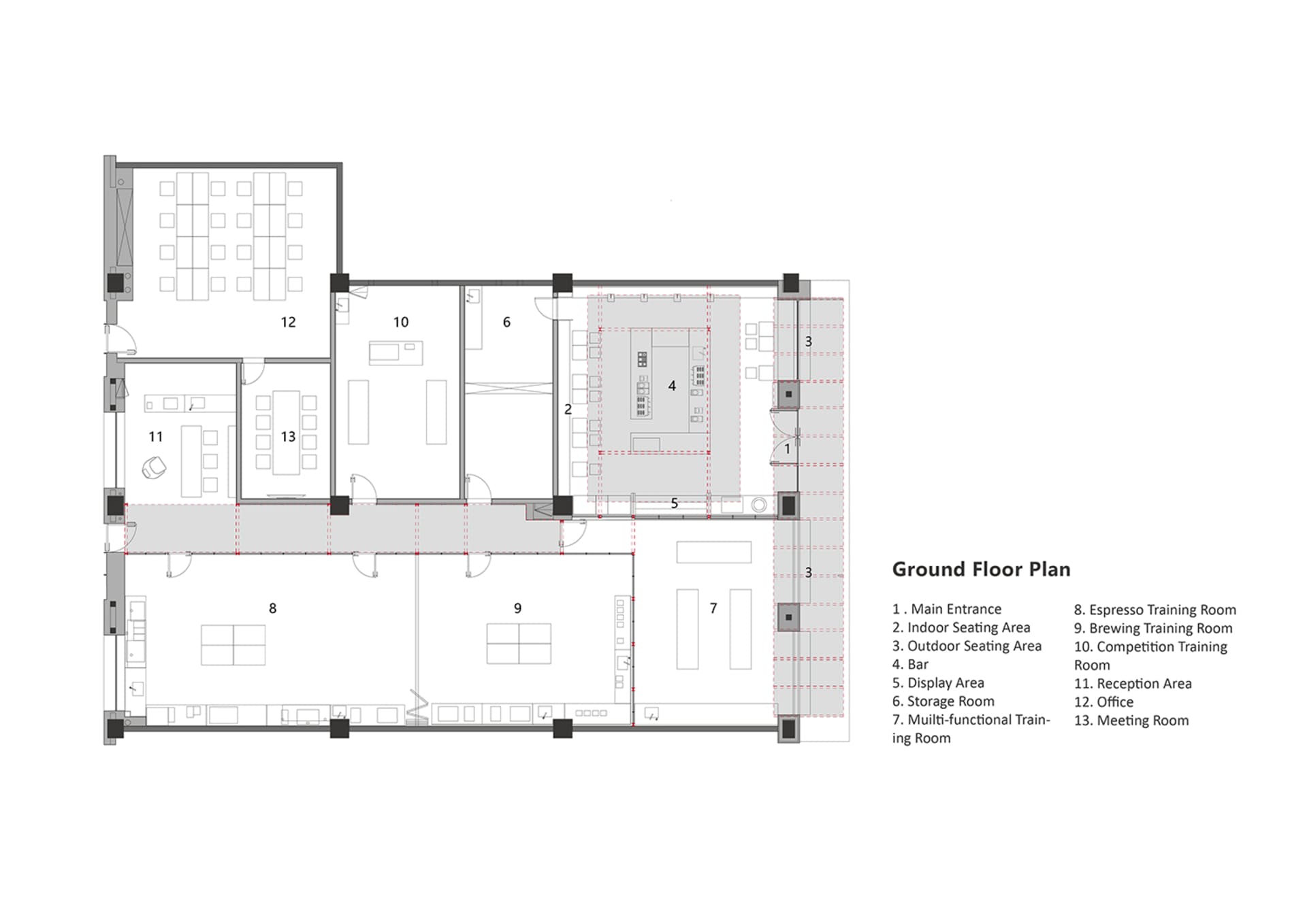
Site (Context) The history of the original building transformed by the project can be traced...
Gallery
苏州MARUS COFFEE及咖啡学院
2 items
苏州MARUS COFFEE及咖啡学院
20 items
Minimalist Retail Collection
22 items
Reviews
Add Review
No reviews yet
Be the first to review!